202 W North Main Street, Richmond, MO 64085

Mortgage Calculator

$485,000
 est. $2,229/mo

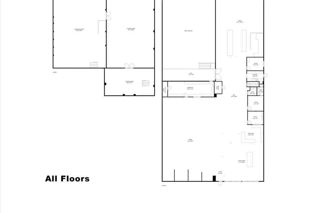
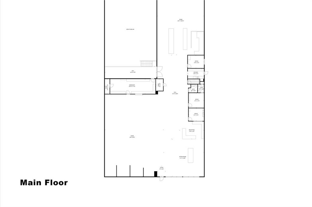
Prime Commercial Opportunity in the Heart of Richmond, MO.. This expansive 15,070 sq ft commercial building is situated in the thriving community of Richmond, MO. After an impressive 100-year run spanning three generations, the owners are retiring, presenting a unique opportunity for the next visionary entrepreneur. Key features of this property include: • Office Space: Ample room for administrative functions and team meetings. • Employee Break Area: A dedicated space for staff to relax and recharge. • Storage Area: Extensive storage facilities to accommodate various business needs. • Work Stations: Several workstations designed for productivity and efficiency. • Reception/Cash Checkout Area: A welcoming reception area ideal for customer interactions and transactions. • Commercial Dock and Unloading Facilities: Equipped with a commercial dock, ensuring smooth and efficient logistics and unloading capabilities.With its strategic location and flexible layout, this property offers endless possibilities for a wide range of commercial ventures. Don’t miss this affordable opportunity to establish your business in a bustling community with a rich history of success.

Directions
From Courthouse proceed S on N College to W North Main. Turn L on W North Main to building on L.
City
Richmond
County
Ray
Property Type
Commercial Sale / Retail
Listing Updated
Jun 12, 2025 at 6:06am
MLS Number
2499356
Property Tax
$4,900
Zoning
$COM
Disclaimer
The information displayed on this page is confidential, proprietary, and copyrighted information of Heartland Multiple Listing Service, Inc. (“Heartland MLS”). Copyright 2025, Heartland Multiple Listing Service, Inc. Heartland MLS, Elite Realty and Agent Jo do not make any warranty or representation concerning the timeliness or accuracy of the information displayed herein. In consideration for the receipt of the information on this page, the recipient agrees to use the information solely for the private non-commercial purpose of identifying a property in which the recipient has a good faith interest in acquiring.
The data relating to real estate displayed on this website comes in part from the Heartland Multiple Listing Service database compilation. The properties displayed on this website may not be all of the properties in the Heartland MLS database compilation, or all of the properties listed with other brokers participating in the Heartland MLS IDX program. Detailed information about the properties displayed on this website includes the name of the listing company.
Information is deemed reliable but is not guaranteed.

Copyright © 2025 ELITE Realty.