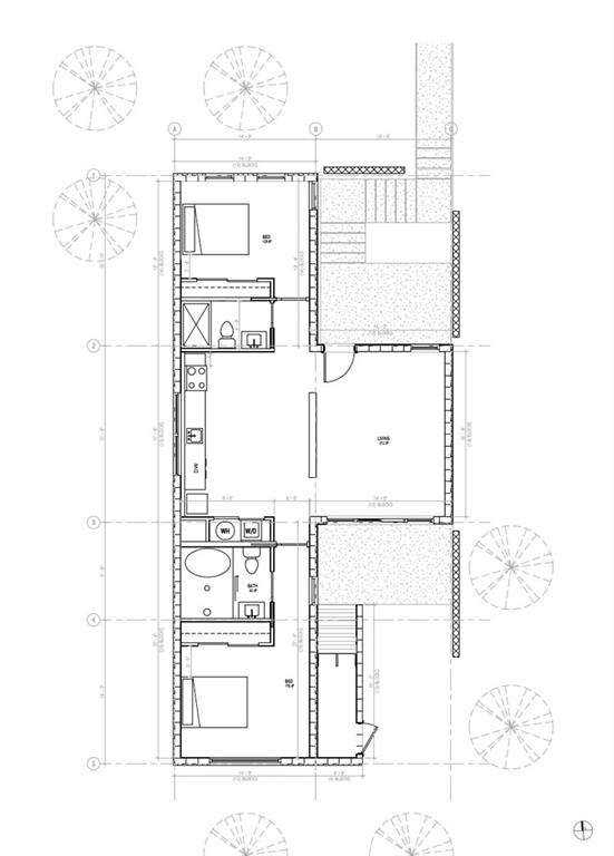
What if the future of affordable housing was right beneath your feet? Introducing the Stonehome Signature—a pioneering new construction home by Civic Saint, thoughtfully crafted from compressed earthen blocks (CEBs) for sustainable living, community revitalization, and long-term value. For the first time in history, this innovative process combines CEBs, prefab manufacturing, and cutting-edge technology to produce artful, eco-conscious homes designed for modern living. Designed as an 800-square-foot single-family residence, this 2-bedroom, 2-bath home redefines sustainable, affordable living with: Thoughtfully Designed Interiors – A full kitchen, spacious living areas, and a dedicated laundry closet provide all the comforts of home in a beautifully compact footprint. Durable & Eco-Friendly Materials – Built with 90% soil, 10% cement and water, CEBs offer twice the strength of concrete blocks, while being fireproof, insect-proof, bulletproof, non-toxic, and energy-efficient. Seamless Indoor-Outdoor Living – Protected rooftop and outdoor spaces invite relaxation, connection, and year-round enjoyment. Tax Incentive Opportunity – This home qualifies for the East Kansas City Urban Renewal Program, offering a multi-year property tax abatement to eligible buyers. Buyer must apply to participate in the program. Expected completion in 2025, the Stonehome Signature represents more than just a home—it’s a new approach to modern, sustainable living. Your only sacrifice? The time spent daydreaming about move-in day.
Copyright © 2026 ELITE Realty.