21974 W 178th Street, Olathe, KS 66062

     
  • 4Beds
  •   
  • 3 Baths
  •  
  • 0½ Baths
  •  
  • 2,685Sq Ft
Mortgage Calculator

$649,900
 est. $3,159/mo

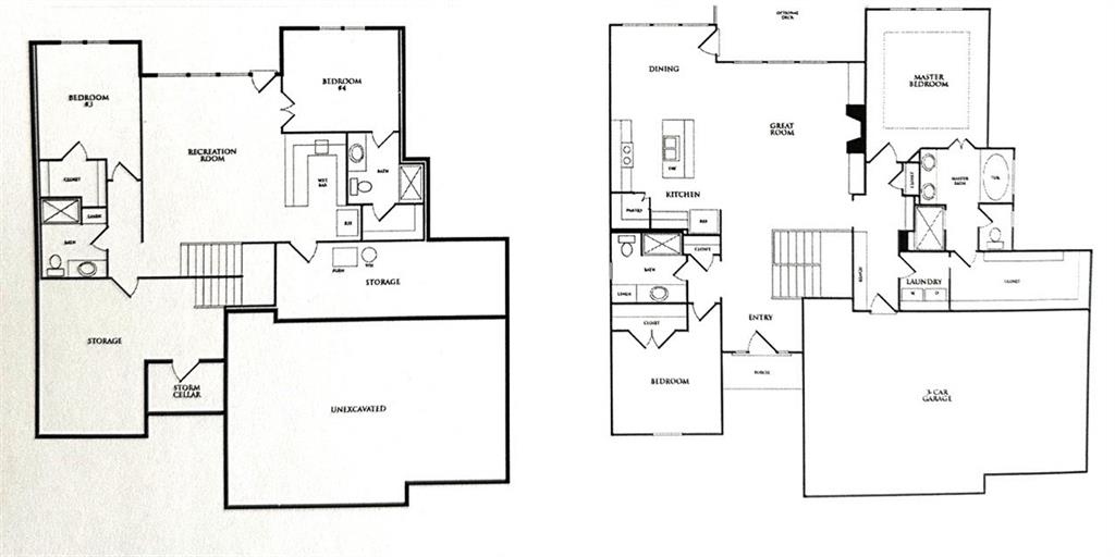
$5k Fall appliance opportunity available! Popular Amber 2 up/ 2 Reverse on walkout, cul-de-sac site. Wonderful kitchen features Custom cabinets, all Kitchen Aid appliances, a walk-in pantry, gas cooktop and a large island. Big walk-in primary closet. All quartz tops and tiled wet areas. Hardwood primary and secondary floors on main level. Additional features include a high efficiency HVAC, Car charge stub, and sprinkler system.

Directions
175th to Lone Elm, south to 177th Terrace, west to 178th Street, left only to address.
Subdivision
Nottington Creek
City
Olathe
County
Johnson, KS
Property Type
Residential / Single Family Residence
Listing Updated
Nov 11, 2025 at 11:11am
MLS Number
2544702
Property Tax
$8,630
Home Owners Association
Yes
Disclaimer
The information displayed on this page is confidential, proprietary, and copyrighted information of Heartland Multiple Listing Service, Inc. (“Heartland MLS”). Copyright 2025, Heartland Multiple Listing Service, Inc. Heartland MLS, Elite Realty and Agent Jo do not make any warranty or representation concerning the timeliness or accuracy of the information displayed herein. In consideration for the receipt of the information on this page, the recipient agrees to use the information solely for the private non-commercial purpose of identifying a property in which the recipient has a good faith interest in acquiring.
The data relating to real estate displayed on this website comes in part from the Heartland Multiple Listing Service database compilation. The properties displayed on this website may not be all of the properties in the Heartland MLS database compilation, or all of the properties listed with other brokers participating in the Heartland MLS IDX program. Detailed information about the properties displayed on this website includes the name of the listing company.
Information is deemed reliable but is not guaranteed.

Copyright © 2025 ELITE Realty.