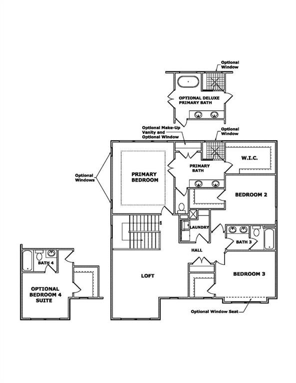
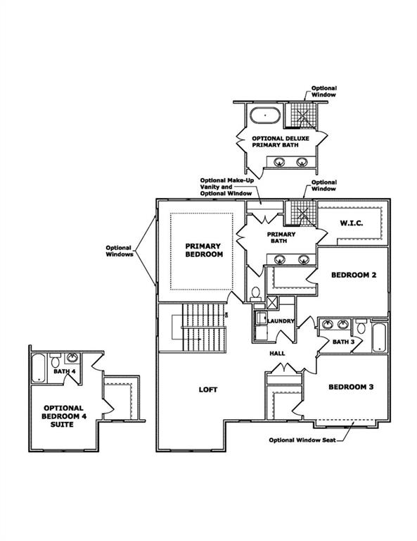
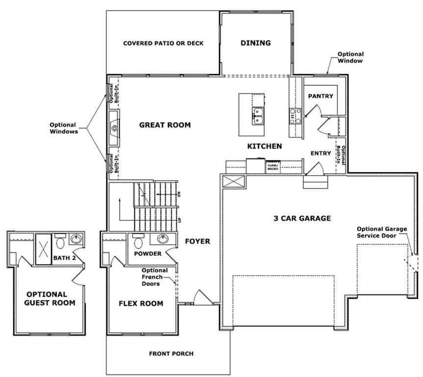
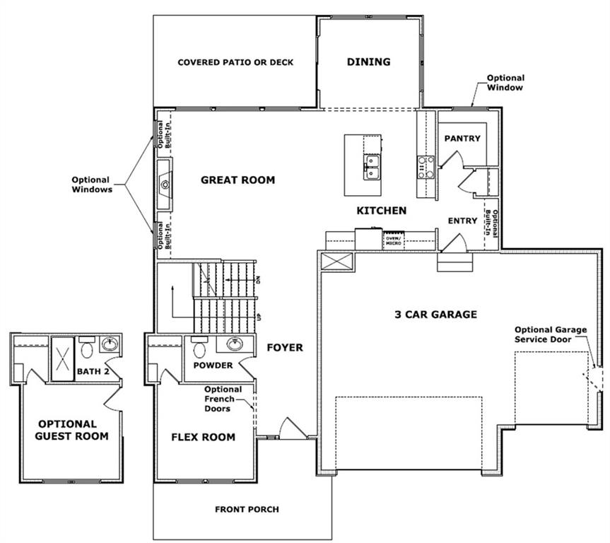
NEARLY FINISHED--will be complete by November of 2025! Welcome to the Inglenook, a popular 2-story plan by Inspired Homes! As you enter, you will be delighted by the wide entryway, as well as a front bedroom/office with French doors. Enjoy your spacious main living area, complete with a floor-to-ceiling fireplace & built-in cabinets, a sizeable dining area with wall-to-wall windows, & a custom designed kitchen with a large walk-in pantry. The kitchen is highlighted by upgraded quartz countertops, stylish tile backsplash, custom built soft closed cabinets, & a modern lighting package. Heading upstairs to the second level, you will discover the primary bedroom with a luxurious bathroom, complete with a soaker tub, custom vanity, a large walk-in shower, and a HUGE closet. There are also three additional large, spacious spare bedrooms, with walk-in closets, built-ins, & one having a private bathroom. Outside, you will enjoy a large, flat backyard with an oversized, covered patio, the perfect space to host parties or for children to play. And the full basement is unfinished, but it has stubs for a future bathroom & wet bar. Inspired Homes also offers extended garage bays, full 3-car driveways, GE appliances, wood and accent trim throughout, full irrigation systems and landscaping, garage openers, and so much more! This home is located in Hilltop Farms, a highly sought-after community, which offers a premier amenities package, including a pool, playground, sports courts, trails, & more! The sports courts are already in, with the pool & playground opening Spring of 2026!
Copyright © 2025 ELITE Realty.