325 State Avenue, Tonganoxie, KS 66086

Mortgage Calculator

$0
 est. $1,440/mo

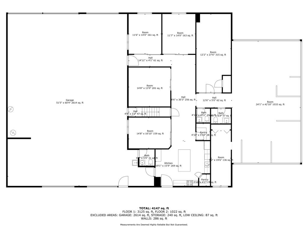
Flexible Lease Options! Looking for the perfect space to grow your business? Welcome to 325 State Avenue in Tonganoxie, Kansas a prime commercial building for lease, ideally located approximately 5 minutes from I-70 and only 20 minutes from Kansas City. This property sits on a spacious 6.5-acre lot, offering plenty of room to expand or accommodate your operational needs. Inside, you'll find 3,345 square feet of office and showroom space, complete with a full kitchen, four private offices, a conference room, and two restrooms. The current front area is composed of cubicles, but it can easily be transformed into a welcoming showroom. Need warehouse or shop space? You’ve got 2,580 square feet with multiple overhead doors, heating, its own restroom, and a loft area for additional storage. With two separate entrances to the property, access is smooth and flexible for staff, customers, or deliveries.

Directions
From 7 HWY - West on State Ave towards Tonganoxie - Property on right
City
Tonganoxie
County
Leavenworth
Property Type
Business Opportunity / Business
Listing Updated
Dec 31, 2025 at 8:12am
MLS Number
2548262
Property Tax
$17,275
Zoning
$C
Disclaimer
The information displayed on this page is confidential, proprietary, and copyrighted information of Heartland Multiple Listing Service, Inc. (“Heartland MLS”). Copyright 2026, Heartland Multiple Listing Service, Inc. Heartland MLS, Elite Realty and Agent Jo do not make any warranty or representation concerning the timeliness or accuracy of the information displayed herein. In consideration for the receipt of the information on this page, the recipient agrees to use the information solely for the private non-commercial purpose of identifying a property in which the recipient has a good faith interest in acquiring.
The data relating to real estate displayed on this website comes in part from the Heartland Multiple Listing Service database compilation. The properties displayed on this website may not be all of the properties in the Heartland MLS database compilation, or all of the properties listed with other brokers participating in the Heartland MLS IDX program. Detailed information about the properties displayed on this website includes the name of the listing company.
Information is deemed reliable but is not guaranteed.

Copyright © 2026 ELITE Realty.