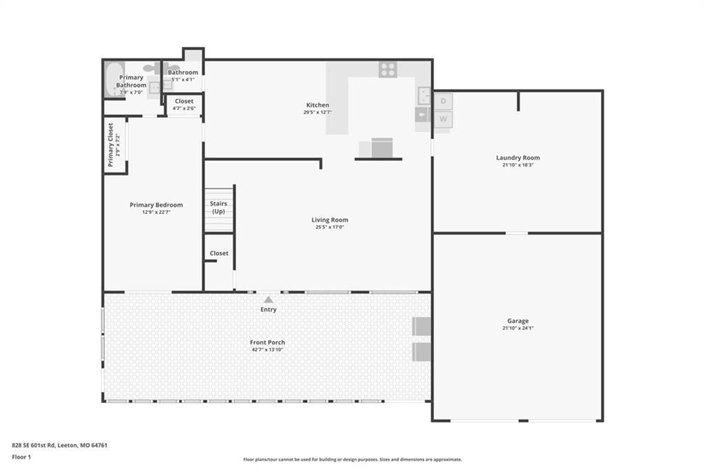
828 Southeast 601 Road, Leeton, MO 64761

     
  • 3Beds
  •   
  • 2 Baths
  •  
  • 1½ Bath
  •  
  • 2,193Sq Ft
Mortgage Calculator

$599,000
 est. $2,354/mo

Motivated seller and all reasonable offers will be considered! 53 Acres of Hunting & Recreational Paradise! Sanctuary, Self-Sufficiency, and Serenity — All Within Reach of Modern Amenities. Escape to your own private retreat with this stunning 53-acre property designed for both recreation and homestead living. Whether you’re seeking peace, privacy, or a basecamp for adventure, this unique property checks all the boxes. Enjoy energy efficiency and year-round comfort in a thoughtfully designed earth contact home. Relax on the large covered porch, and soak in the built-in hot tub as the sun sets over your very own piece of paradise. 1,000-gallon supplemental water tank offers peace of mind for emergency and off-grid living. Spacious barn provides ample storage or animal shelter options. The two-story workshop is equipped for livestock and all of your DIY or homesteading projects. Established garden beds and perennial landscaping create beauty and bounty year-round. Fully stocked pond with a dock offers year-round fishing and water fun. Potential for ATV trails, hunting stands, and food plots to craft your own outdoor adventure haven. Abundant wildlife makes this a hunter’s paradise, while open pastures and wooded areas offer room to roam and explore. Enjoy the seclusion of country living while still being just a short drive from local shops, schools, and community conveniences. Nature lovers, hunters, and recreational enthusiasts! Quick Take A Look and Make this Opportunity Your Own! Buyer's are encouraged to verify all measurements and claims.

Directions
13 Hwy to Y Hwy. Follow to SE 601st Rd Continue to 651. Turn onto 800 and then 601rd to property.
Subdivision
None
City
Leeton
County
Johnson, MO
Property Type
Residential / Single Family Residence
Listing Updated
Nov 09, 2025 at 9:11am
MLS Number
2551874
Property Tax
$1,254
Home Owners Association
No
Disclaimer
The information displayed on this page is confidential, proprietary, and copyrighted information of Heartland Multiple Listing Service, Inc. (“Heartland MLS”). Copyright 2025, Heartland Multiple Listing Service, Inc. Heartland MLS, Elite Realty and Agent Jo do not make any warranty or representation concerning the timeliness or accuracy of the information displayed herein. In consideration for the receipt of the information on this page, the recipient agrees to use the information solely for the private non-commercial purpose of identifying a property in which the recipient has a good faith interest in acquiring.
The data relating to real estate displayed on this website comes in part from the Heartland Multiple Listing Service database compilation. The properties displayed on this website may not be all of the properties in the Heartland MLS database compilation, or all of the properties listed with other brokers participating in the Heartland MLS IDX program. Detailed information about the properties displayed on this website includes the name of the listing company.
Information is deemed reliable but is not guaranteed.

Copyright © 2025 ELITE Realty.