3110 Troost Avenue, Kansas City, MO 64109

Mortgage Calculator

$5,592
 est. $542/mo

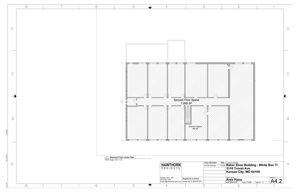
Up to 7,895± SF of second-floor office space available above ground-floor retail on Troost Ave. Currently in shell condition, with flexible layout options and divisible configurations. Ideal for office, studio, wellness, or nonprofit use. Private entrance available, with potential for dedicated signage. Retail storefronts below range from 1,414–3,226± SF and may complement office use for tenants needing ground-floor presence. Located in a high-visibility Midtown corridor near Beacon Hill, Hospital Hill, and active redevelopment. Lease terms subject to tenant use and credit.

Directions
From I-70 or I-435, take US-71 to the 31st Street exit. Head east on 31st, then turn right (south) onto Troost Ave. Property is located on the east side of Troost, between Linwood Blvd and Armour Blvd (just minutes from Downtown, the Plaza, and midtown neighborhoods). To find shortest driving distance use navigation system or mapping services.
City
Kansas City
County
Jackson
Property Type
Commercial Lease / Office
Listing Updated
Jul 17, 2025 at 7:07pm
MLS Number
2563268
Property Tax
$6,243
Zoning
$B4-5
Disclaimer
The information displayed on this page is confidential, proprietary, and copyrighted information of Heartland Multiple Listing Service, Inc. (“Heartland MLS”). Copyright 2026, Heartland Multiple Listing Service, Inc. Heartland MLS, Elite Realty and Agent Jo do not make any warranty or representation concerning the timeliness or accuracy of the information displayed herein. In consideration for the receipt of the information on this page, the recipient agrees to use the information solely for the private non-commercial purpose of identifying a property in which the recipient has a good faith interest in acquiring.
The data relating to real estate displayed on this website comes in part from the Heartland Multiple Listing Service database compilation. The properties displayed on this website may not be all of the properties in the Heartland MLS database compilation, or all of the properties listed with other brokers participating in the Heartland MLS IDX program. Detailed information about the properties displayed on this website includes the name of the listing company.
Information is deemed reliable but is not guaranteed.

Copyright © 2026 ELITE Realty.