23801 E 11th Terrace, Independence, MO 64056

     
  • 4Beds
  •   
  • 2 Baths
  •  
  • 1½ Bath
  •  
  • 2,032Sq Ft
Mortgage Calculator

$454,000
 est. $1,705/mo

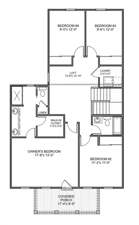
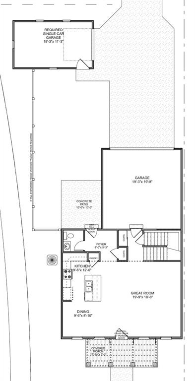
Welcome to New Town at Harmony located within the Blue Springs School District. This beautiful 3-car garage 2-story home captures the essence of traditional architecture with its double porches. Inside, a bright and open great room flows seamlessly into the dining area and kitchen, creating an inviting space perfect for entertaining and family gatherings. A large island, pantry, and rear-entry garage make daily living convenient and stylish. Upstairs, the owner’s suite offers a private retreat with a walk-in closet and luxurious bath, while three additional bedrooms and a second-floor laundry add function and flexibility. With an attached 2-car garage and a detatched 3rd car garage perfect for detatched shop, art studio, she-shed, office, etc; the opportunities are endless! Located in New Town at Harmony, residents enjoy parks, tree lined streets, sand volleyball courts, and more just steps away.

Directions
from 70 Highway take Little Blue Parkway and head North to Truman Rd. Take Truman Rd East to Harmony Ave. Take a right on 11th Street South and the home is on your left hand side.
Subdivision
New Town at Harmony
City
Independence
County
Jackson
Property Type
Residential / Single Family Residence
Listing Updated
Apr 17, 2026 at 1:04pm
MLS Number
2582092
Property Tax
$1
Home Owners Association
Yes - NTAH
Disclaimer
The information displayed on this page is confidential, proprietary, and copyrighted information of Heartland Multiple Listing Service, Inc. (“Heartland MLS”). Copyright 2026, Heartland Multiple Listing Service, Inc. Heartland MLS, Elite Realty and Agent Jo do not make any warranty or representation concerning the timeliness or accuracy of the information displayed herein. In consideration for the receipt of the information on this page, the recipient agrees to use the information solely for the private non-commercial purpose of identifying a property in which the recipient has a good faith interest in acquiring.
The data relating to real estate displayed on this website comes in part from the Heartland Multiple Listing Service database compilation. The properties displayed on this website may not be all of the properties in the Heartland MLS database compilation, or all of the properties listed with other brokers participating in the Heartland MLS IDX program. Detailed information about the properties displayed on this website includes the name of the listing company.
Information is deemed reliable but is not guaranteed.

Copyright © 2026 ELITE Realty.