909 Walnut Street, Kansas City, MO 64106

     
  • 3Beds
  •   
  • 3 Baths
  •  
  • 4½ Baths
  •  
  • 6,100Sq Ft
Mortgage Calculator

$4,750,000
 est. $18,145/mo

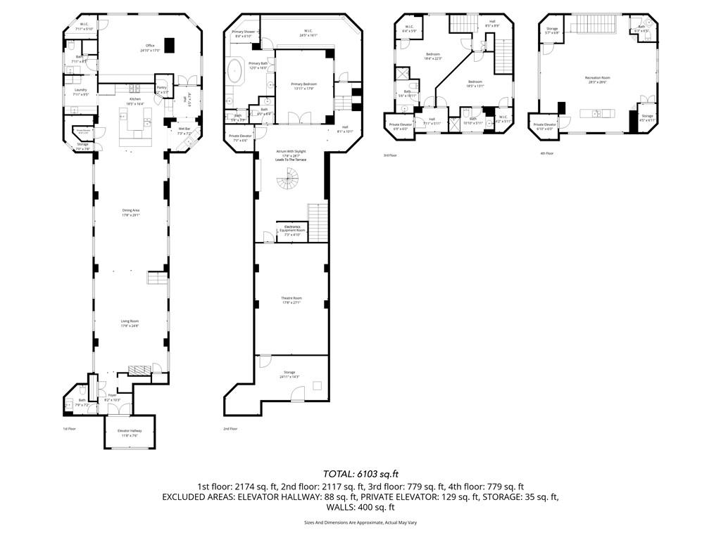
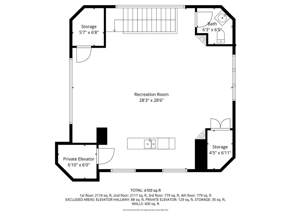
Introducing THE Penthouse. Never before on the market, this is a once in a lifetime opportunity to own a piece of the Kansas City skyline in one of the most iconic downtown skyscrapers. The 32nd, 33rd, 34th, and 35th floors were design-built to create the most iconic and unparalleled penthouse KC had ever seen. Featured in the Wall Street Journal and KC Star, the penthouse spans 6100+ square feet of bespoke luxury living across four floors with in residence elevator and a breathtaking rooftop garden terrace perched 360 feet above the city. Reported as the highest personal residence in a five-state region, the penthouse sits atop a rare Art Deco masterpiece, 909 Walnut, formerly the Fidelity Bank and listed on the National Historic Registry. The main level offers expansive living and dining space surrounded by unmatched skyline views. The chef’s kitchen features high end appliances, heated and cooled drawers, a dedicated wet bar, and wine storage. The office showcases extravagant wood built-ins with serene north facing river views. The primary suite is a private retreat with a spa-inspired ensuite, seven-headed shower, and huge walk in closet. The atrium also features a movie theater. The two guest suites each have ensuite baths and walk in closets. Atop of the north tower sits one of the most remarkable personal entertainment spaces in the midwest: a billiards room and bar with soaring ceilings and 15 foot windows boast an unmatched river and cityscape view. The rooftop terrace set between the two towers, offers incomparable views and the most elevated outdoor experience in the entire city. Ideal for sunsets or hosting an intimate cocktail party. VIP express elevator service and a private secured 4-car tandem garage on the ground floor provide convenience and discretion for the discerning buyer. Enjoy all downtown has to offer and retreat home to your castle in the sky. On market date subject to change.

Directions
From I-35, exit onto I-670 East toward Downtown. Take Exit 2D (Broadway/Walnut). Head South on Walnut Street. Building on right between 9th and 10th Streets. Secure building - contact listing agent for access.
Subdivision
909 Walnut Condominium
City
Kansas City
County
Jackson
Property Type
Residential / Condominium
Listing Updated
Apr 20, 2026 at 1:04am
MLS Number
2592850
Property Tax
$3,764
Home Owners Association
Yes - 909 Walnut Condominiums
Disclaimer
The information displayed on this page is confidential, proprietary, and copyrighted information of Heartland Multiple Listing Service, Inc. (“Heartland MLS”). Copyright 2026, Heartland Multiple Listing Service, Inc. Heartland MLS, Elite Realty and Agent Jo do not make any warranty or representation concerning the timeliness or accuracy of the information displayed herein. In consideration for the receipt of the information on this page, the recipient agrees to use the information solely for the private non-commercial purpose of identifying a property in which the recipient has a good faith interest in acquiring.
The data relating to real estate displayed on this website comes in part from the Heartland Multiple Listing Service database compilation. The properties displayed on this website may not be all of the properties in the Heartland MLS database compilation, or all of the properties listed with other brokers participating in the Heartland MLS IDX program. Detailed information about the properties displayed on this website includes the name of the listing company.
Information is deemed reliable but is not guaranteed.

Copyright © 2026 ELITE Realty.