12100 Hedge Lane Terrace, Olathe, KS 66061

     
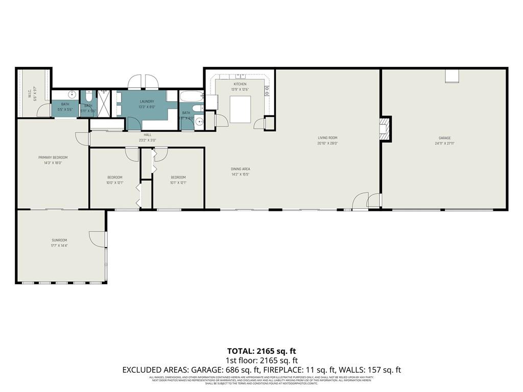
  • 3Beds
  •   
  • 2 Baths
  •  
  • 0½ Baths
  •  
  • 2,250Sq Ft
Mortgage Calculator

$635,000
 est. $2,755/mo

Tucked away on 5.09 private, gated acres, this unique earth-contact home offers peaceful living surrounded by nature. Featuring 3 bedrooms, 2 bathrooms, and 2,250 square feet, the home blends comfortable living with a truly serene setting. The primary suite includes an en suite bath and a sunroom retreat—perfect for morning coffee or unwinding while overlooking the natural landscape. The property showcases a private, stocked pond, ideal for fishing or simply enjoying the quiet views and wildlife. A private drive with gate, carport, and expansive acreage create a rare sense of seclusion while still being conveniently located in Olathe. Whether you’re seeking privacy, space to roam, or a one-of-a-kind setting, this property offers endless potential and a lifestyle that’s hard to find.

Directions
Get on I-35 S from Kansas City heading toward Wichita Stay on I-35 S for about 18–20 miles Take Exit 215 for 119th St Turn right (west) onto W 119th St Drive about 1 mile Turn left (south) onto Hedge Lane Terrace Continue straight — 12100 Hedge Lane Ter will be on your right
Subdivision
None
City
Olathe
County
Johnson, KS
Property Type
Residential / Single Family Residence
Listing Updated
Mar 22, 2026 at 2:03pm
MLS Number
2596549
Property Tax
$4,453
Home Owners Association
No
Disclaimer
The information displayed on this page is confidential, proprietary, and copyrighted information of Heartland Multiple Listing Service, Inc. (“Heartland MLS”). Copyright 2026, Heartland Multiple Listing Service, Inc. Heartland MLS, Elite Realty and Agent Jo do not make any warranty or representation concerning the timeliness or accuracy of the information displayed herein. In consideration for the receipt of the information on this page, the recipient agrees to use the information solely for the private non-commercial purpose of identifying a property in which the recipient has a good faith interest in acquiring.
The data relating to real estate displayed on this website comes in part from the Heartland Multiple Listing Service database compilation. The properties displayed on this website may not be all of the properties in the Heartland MLS database compilation, or all of the properties listed with other brokers participating in the Heartland MLS IDX program. Detailed information about the properties displayed on this website includes the name of the listing company.
Information is deemed reliable but is not guaranteed.

Copyright © 2026 ELITE Realty.