9 E Washington Street, Carrollton, MO 64633

Mortgage Calculator

$220,000
 est. $889/mo

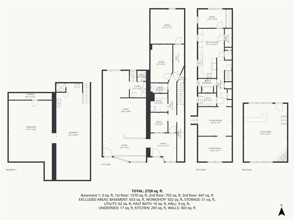
Exceptional investment opportunity just steps from the heart of downtown Carrollton! This versatile 2720 square foot commercial building offers the perfect blend of business potential and residential income — all just half a block from Main Street for outstanding visibility and convenience. The main level features two separate commercial units, ideal for owner-occupancy with additional rental income, or lease both spaces for a strong dual-income stream. With flexible layouts and street-level access, these units are well-suited for retail, office, or service-based businesses looking to benefit from downtown traffic and accessibility. Upstairs, the spacious 2-bedroom apartment provides an excellent opportunity for supplemental income or comfortable on-site living. With generous living space and separation from the commercial level, it offers privacy while maintaining the convenience of a live-work setup. Whether you’re an investor seeking multiple revenue streams or an entrepreneur looking to establish your business while generating rental income, this property delivers location, flexibility, and opportunity in one attractive package. Schedule your showing today and explore the potential this downtown gem has to offer!

Directions
From Hwy 65, West on E Benton to S Virginia St, South on S Virginia St to E Washington, West on E Washington to subject proeprty.
Subdivision
None
City
Carrollton
County
Carroll
Property Type
Commercial Sale / Office
Listing Updated
Feb 26, 2026 at 11:02am
MLS Number
2604130
Property Tax
$756
Zoning
$Com
Disclaimer
The information displayed on this page is confidential, proprietary, and copyrighted information of Heartland Multiple Listing Service, Inc. (“Heartland MLS”). Copyright 2026, Heartland Multiple Listing Service, Inc. Heartland MLS, Elite Realty and Agent Jo do not make any warranty or representation concerning the timeliness or accuracy of the information displayed herein. In consideration for the receipt of the information on this page, the recipient agrees to use the information solely for the private non-commercial purpose of identifying a property in which the recipient has a good faith interest in acquiring.
The data relating to real estate displayed on this website comes in part from the Heartland Multiple Listing Service database compilation. The properties displayed on this website may not be all of the properties in the Heartland MLS database compilation, or all of the properties listed with other brokers participating in the Heartland MLS IDX program. Detailed information about the properties displayed on this website includes the name of the listing company.
Information is deemed reliable but is not guaranteed.

Copyright © 2026 ELITE Realty.