1509 N 83rd Street, Kansas City, KS 66112

     
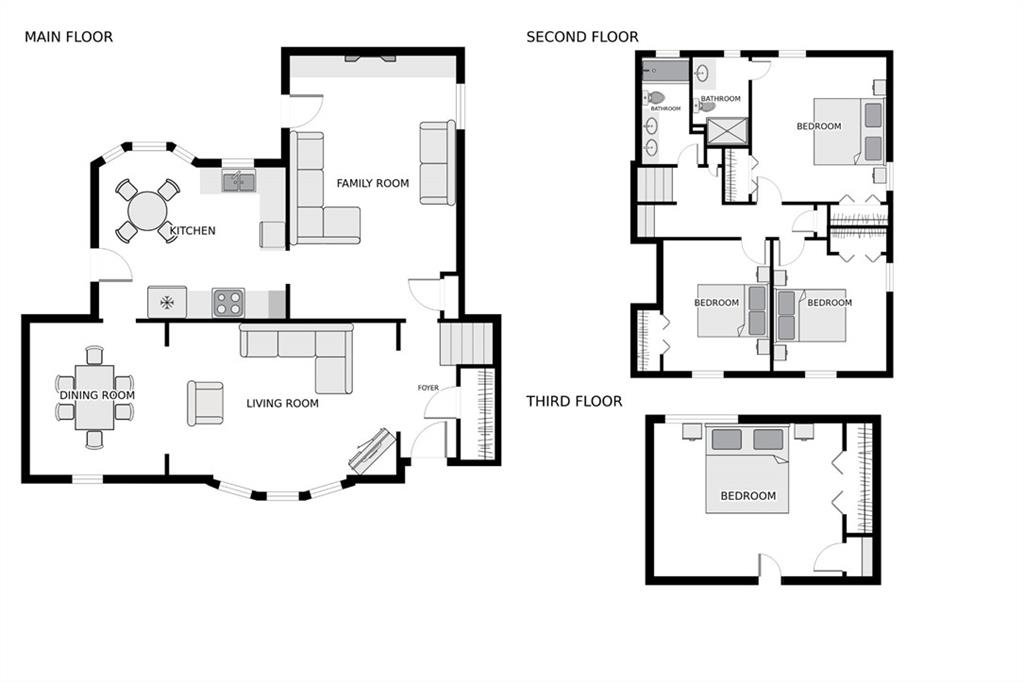
  • 4Beds
  •   
  • 2 Baths
  •  
  • 2½ Baths
  •  
  • 2,720Sq Ft
Mortgage Calculator

$300,000
 est. $1,496/mo

This home has been truly loved and carefully maintained over the years, and it shows. Solidly built with great bones, it blends classic charm with important updates, so you can move right in and make it your own with ease. Under the carpet in the living and dining rooms, you’ll find beautiful original hardwoods just waiting to be uncovered and refinished to your style. The eat-in kitchen is practical and welcoming, with a newer washer and dryer for your convenience, a new garbage disposal, and updated faucet as well as a powder room. All of the windows throughout the home have been replaced, bringing in great light while keeping things energy efficient. Big-ticket updates are already done for you, including a two-year-old roof, a brand-new HVAC system, and fresh interior paint throughout. Hardwood floors run through the three bedrooms on the split level, and just a few steps up you’ll find a spacious fourth bedroom along with generous storage space. The finished basement adds even more flexibility, with a bar area, half bath, a working vintage refrigerator, and a workshop complete with an air compressor setup. Whether you love to entertain, tinker, or both, there’s room for it here. Out back, the fenced yard offers privacy and space to relax, plus a handy storage shed. All of this in a location just minutes from schools, shopping, and everyday conveniences. It’s a home that’s been well cared for and is ready for its next chapter.

Directions
From State Ave at College Pkwy, go west on State Ave. to N 82nd St and turn right. Take a left on Everett Ave and then a right onto N 83rd Street. House is ahead on the right.
Subdivision
None
City
Kansas City
County
Wyandotte
Property Type
Residential / Single Family Residence
Listing Updated
Mar 20, 2026 at 9:03am
MLS Number
2604306
Property Tax
$4,438
Home Owners Association
No
Disclaimer
The information displayed on this page is confidential, proprietary, and copyrighted information of Heartland Multiple Listing Service, Inc. (“Heartland MLS”). Copyright 2026, Heartland Multiple Listing Service, Inc. Heartland MLS, Elite Realty and Agent Jo do not make any warranty or representation concerning the timeliness or accuracy of the information displayed herein. In consideration for the receipt of the information on this page, the recipient agrees to use the information solely for the private non-commercial purpose of identifying a property in which the recipient has a good faith interest in acquiring.
The data relating to real estate displayed on this website comes in part from the Heartland Multiple Listing Service database compilation. The properties displayed on this website may not be all of the properties in the Heartland MLS database compilation, or all of the properties listed with other brokers participating in the Heartland MLS IDX program. Detailed information about the properties displayed on this website includes the name of the listing company.
Information is deemed reliable but is not guaranteed.

Copyright © 2026 ELITE Realty.