529 N 5th Street, Lacygne, KS 66040

     
  • 3Beds
  •   
  • 2 Baths
  •  
  • 0½ Baths
  •  
  • 1,170Sq Ft
Mortgage Calculator

$199,900
 est. $970/mo

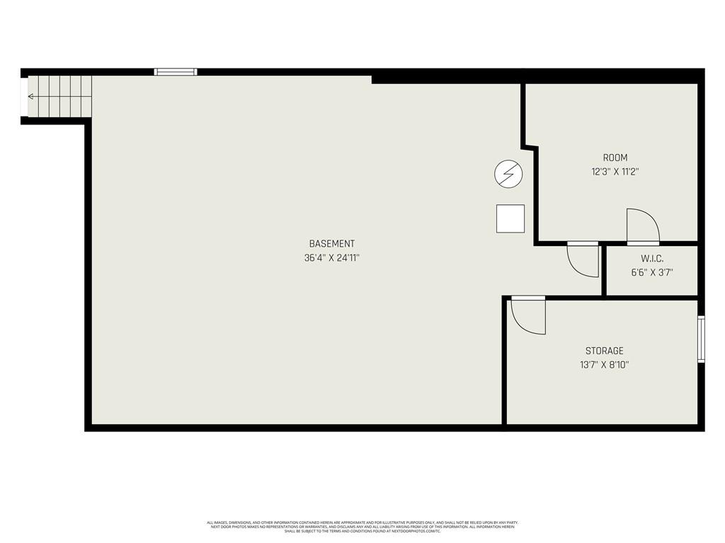
NEW ROOF!! This charming ranch-style home offers 3 bedrooms, 2 full bathrooms, and a spacious open-concept living and dining area - perfect for everyday living and entertaining. The attached garage has been thoughtfully remodeled to include additional storage and a large, updated laundry room conveniently located just off the kitchen. Recent improvements include a brand-new roof!! The full, unfinished basement provides plenty of storage space with the potential to be finished for additional living area. Step outside from the dining area onto the back deck overlooking a partially fenced yard - ideal for pets or outdoor enjoyment. A standout feature of the property is the impressive 40x60 shop, complete with a concrete floor, two 10-foot sliding double doors, a standard garage door, and 220-volt electrical, offering endless possibilities for hobbies, storage, or workspace.

Directions
Head south on US-69 Highway from Overland Park. Continue on US-69 S for approximately 35 miles. Take the exit toward KS-152/La Cygne and turn left (east) onto KS-152 Highway. Continue on KS-152 E into La Cygne. Once in town, turn left (north) onto N 5th Street. Continue north for a few blocks—529 N 5th St will be on your right.
Subdivision
Other
City
Lacygne
County
Linn, KS
Property Type
Residential / Single Family Residence
Listing Updated
Apr 14, 2026 at 8:04pm
MLS Number
2608822
Property Tax
$2,630
Home Owners Association
No
Disclaimer
The information displayed on this page is confidential, proprietary, and copyrighted information of Heartland Multiple Listing Service, Inc. (“Heartland MLS”). Copyright 2026, Heartland Multiple Listing Service, Inc. Heartland MLS, Elite Realty and Agent Jo do not make any warranty or representation concerning the timeliness or accuracy of the information displayed herein. In consideration for the receipt of the information on this page, the recipient agrees to use the information solely for the private non-commercial purpose of identifying a property in which the recipient has a good faith interest in acquiring.
The data relating to real estate displayed on this website comes in part from the Heartland Multiple Listing Service database compilation. The properties displayed on this website may not be all of the properties in the Heartland MLS database compilation, or all of the properties listed with other brokers participating in the Heartland MLS IDX program. Detailed information about the properties displayed on this website includes the name of the listing company.
Information is deemed reliable but is not guaranteed.

Copyright © 2026 ELITE Realty.