11236 N Randolph Avenue, Kansas City, MO 64157

     
  • 2Beds
  •   
  • 2 Baths
  •  
  • 0½ Baths
  •  
  • 1,404Sq Ft
Mortgage Calculator

$365,000
 est. $1,727/mo

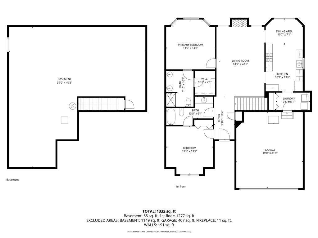
Welcome to easy living in the desirable Auburndale Patio Homes! This maintenance-provided villa offers true one-level living with a thoughtful layout and comfortable spaces throughout. Step inside to a spacious living room featuring a cozy fireplace, with large windows on each side, complete with plantation shutters that fill the space with natural light . Just off the living room, the eat-in kitchen offers white cabinetry, granite countertops, stainless steel appliances, and a convenient built-in desk with upper cabinets—perfect for staying organized. A sliding door leads directly to the patio, making it easy to enjoy outdoor relaxation. The kitchen also provides access to the laundry room and garage for everyday convenience. On the opposite side of the home, you’ll find the private primary suite complete with a walk-in closet, double vanity, and walk-in shower. The second bedroom features a cathedral ceiling and a large front-facing window, along with a walk-through bathroom that connects to the main hallway—ideal for guests. The unfinished basement offers excellent potential for additional living space, including a large window suitable for a future third bedroom. Low-maintenance living, a functional floor plan, and room to grow—this one checks all the boxes!

Directions
NE Cookingham Dr. south on NE 112th St, right on N Smalley Ave. Left on N Randolph Ave, destination on the right
Subdivision
AUBURNDALE PATIO
City
Kansas City
County
Clay
Property Type
Residential / Villa
Listing Updated
Apr 19, 2026 at 2:04pm
MLS Number
2611984
Property Tax
$4,279
Home Owners Association
Yes - Auburndale Patio Homes
Disclaimer
The information displayed on this page is confidential, proprietary, and copyrighted information of Heartland Multiple Listing Service, Inc. (“Heartland MLS”). Copyright 2026, Heartland Multiple Listing Service, Inc. Heartland MLS, Elite Realty and Agent Jo do not make any warranty or representation concerning the timeliness or accuracy of the information displayed herein. In consideration for the receipt of the information on this page, the recipient agrees to use the information solely for the private non-commercial purpose of identifying a property in which the recipient has a good faith interest in acquiring.
The data relating to real estate displayed on this website comes in part from the Heartland Multiple Listing Service database compilation. The properties displayed on this website may not be all of the properties in the Heartland MLS database compilation, or all of the properties listed with other brokers participating in the Heartland MLS IDX program. Detailed information about the properties displayed on this website includes the name of the listing company.
Information is deemed reliable but is not guaranteed.

Copyright © 2026 ELITE Realty.