4240-Suite 101 Blue Ridge Boulevard, Kansas City, MO 64133

Mortgage Calculator

$2,646
 est. $7,857/mo

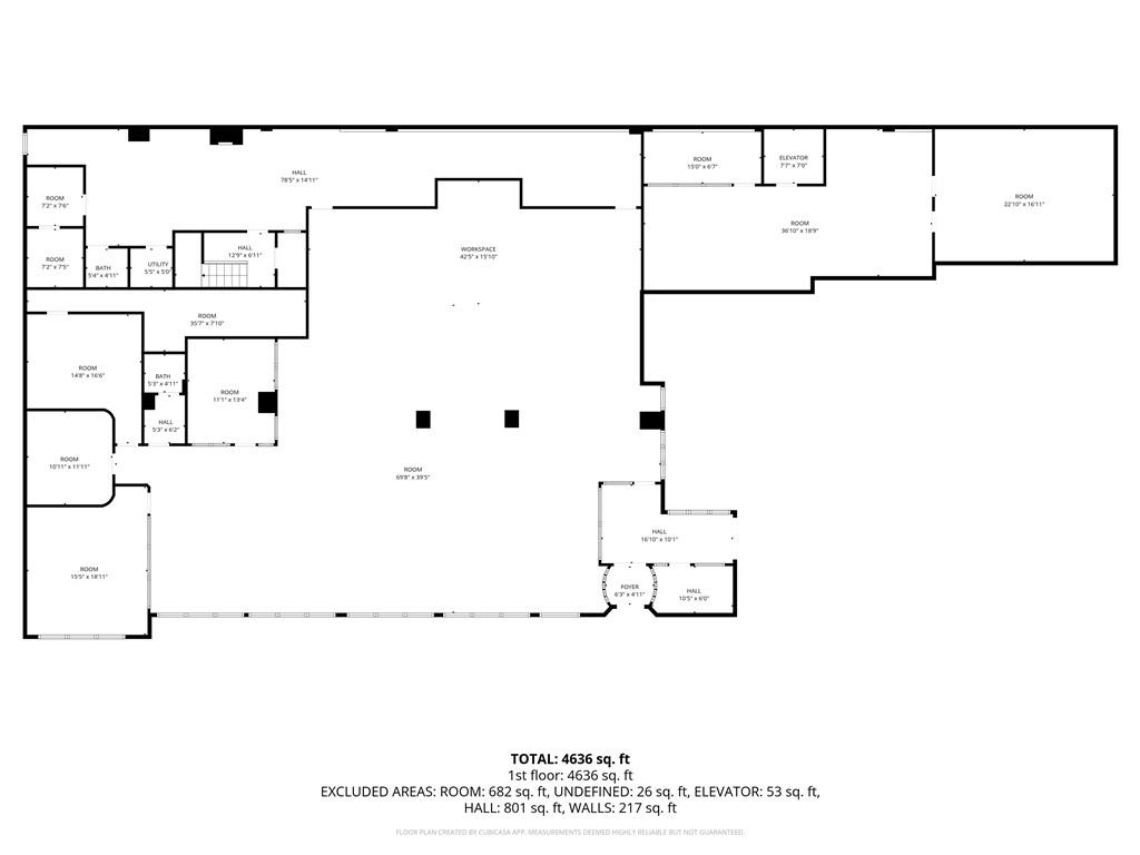
This 6,107 SF flagship main level space at Blue Ridge Tower offers a rare, high-security "plug-and-play" opportunity at the intersection of I-70 and US-40 HWY. Originally designed as a premium bank branch, the layout features a reinforced secure vault, dedicated teller stations, and a private interior elevator connecting its two levels. The fortified infrastructure makes it an ideal fit for high-value retail or professional services such as jewelry, high-end electronics, or specialty pharmacy, which require significant on-site security and specialized storage. 130,000+ daily impressions and prominent monument signage, within a newly revitalized building (2024 upgrades) featuring modern LED lighting and professional common areas. Tenants benefit from a full-service lease that handles HVAC, janitorial, and Wi-Fi. With an abundant 4.5/1,000 parking ratio, 24/7 on-site security, and walking-distance access to Walmart and Starbucks, this space provides the ultimate blend of regional visibility and mission-critical security.

Directions
From I-70, take Exit 11 for Blue Ridge Blvd/US-40. Head south on Blue Ridge Blvd toward US-40 Hwy. Located in the Blue Ridge Tower building, located at the southeast corner of the I-70 and US-40 interchange, directly across from Blue Ridge Crossing (Walmart/Lowe’s). Turn right into the main surface parking lot.
Subdivision
Valentine
City
Kansas City
County
Jackson
Property Type
Commercial Lease / Retail
Listing Updated
Apr 06, 2026 at 1:04pm
MLS Number
2612122
Property Tax
$94,153
Zoning
$B4-5
Disclaimer
The information displayed on this page is confidential, proprietary, and copyrighted information of Heartland Multiple Listing Service, Inc. (“Heartland MLS”). Copyright 2026, Heartland Multiple Listing Service, Inc. Heartland MLS, Elite Realty and Agent Jo do not make any warranty or representation concerning the timeliness or accuracy of the information displayed herein. In consideration for the receipt of the information on this page, the recipient agrees to use the information solely for the private non-commercial purpose of identifying a property in which the recipient has a good faith interest in acquiring.
The data relating to real estate displayed on this website comes in part from the Heartland Multiple Listing Service database compilation. The properties displayed on this website may not be all of the properties in the Heartland MLS database compilation, or all of the properties listed with other brokers participating in the Heartland MLS IDX program. Detailed information about the properties displayed on this website includes the name of the listing company.
Information is deemed reliable but is not guaranteed.

Copyright © 2026 ELITE Realty.